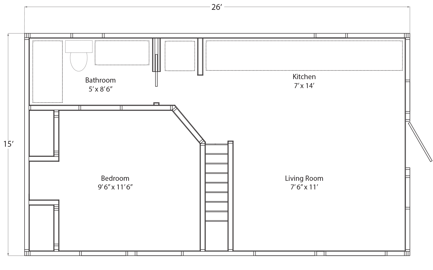
Sundowner Tiny Living provides all the amenities and features you need in a small yet useful package. You don't have to sacrifice quality when you choose to live small! With vinyl plank flooring, custom hardwood cabinets and built-ins, and solid surface counters our tiny homes have it all.
